Bâtiment bureaux Kylä – Paris

Bureaux-Kyla-Paris02

Travaux de transformation d’un bâtiment de bureaux

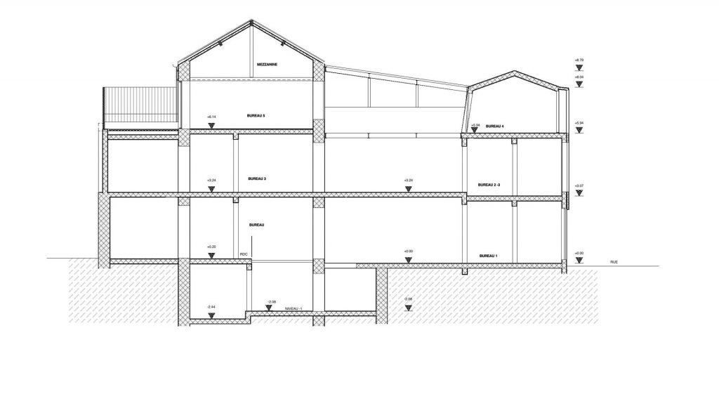
Le bâti existant était formé de plusieurs bâtiments et extensions de différentes périodes. Il n’y avait pas de cour, les constructions couvrant entièrement le terrain. Les trois niveaux abritaient des bureaux. Le collage des matériaux et formes existants peinait à s’affirmer dans le tissu environnant. L’objectif principal a donc été d’améliorer l’esthétique de l’ensemble, de diviser les espaces en lots plus attractifs, surtout en apportant plus de lumière naturelle aux espaces d’origine très sombres et fermés.

Les bureaux des 1er et 2ème étages sont groupés autour d’une verrière s’élevant sur deux étages suite à la suppression d’un plancher intermédiaire rapporté. La structure en acier a été laissé à sa place afin de conserver la stabilité de l’ensemble. Cet espace constitue un élément architectural fort, distribuant une lumière généreuse au premier étage, utilisé comme cour commune pour les fêtes des locataires. Le 1 er étage profite donc d’ une grand luminosité zénithale, renforcée par une deuxième verrière, créée au fond du lot.

Par l’agrandissement des fenêtres existantes, les espaces intérieurs, malgré leur grande profondeur, vont être mis en contact avec les espaces extérieurs. Les bureaux du 2ème étage profitent d’une terrasse et d’une loggia accessibles. Cet aménagement permet de mettre les espaces en relation avec le jardin du terrain voisin côté nord, et avec la rue côté sud.

L’isolation thermique a été renforcé par une isolation par l’extérieur sur les façades sud, nord et le pignon visible du bâtiment rue. Les façades sont habillées en bois de mélèze dont la patine naturelle apporte une allure personnalisée et harmonieuse à l’ensemble du bâti, créant une unité qui lui faisait cruellement défaut par le passé.

Pour résumer, l’objectif final du projet a été de créer des espaces architecturaux cohérents, sobres, épurés et des lieux de travail « décontractés ».

Réalisation 2012.